The HT92-D hydraulic bolting jumbo (mini. cross section height: 2.8 m) is designed for efficient bolting operations in compact tunnels and underground metal mines. Its special feed mechanism allows reliable bolting in tunnels as small as 2.8 m × 2.8 m.
Equipped with an advanced electro-hydraulic drilling system and an anti-jamming device, the hydraulic bolting jumbo delivers fast drilling speed, high efficiency, and stable performance. The compact and highly maneuverable design ensures smooth operation in confined spaces, improving both working conditions and overall construction quality.
| Hydraulic drilling jumbo | Suitable cross section | 2800×2800-3500×3500mm |
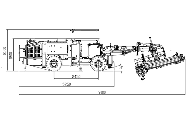
| Length | 9100mm | |
| Width | 1500mm | |
| Height (roof down) | 1800mm | |
| Height (roof up) | 2500mm | |
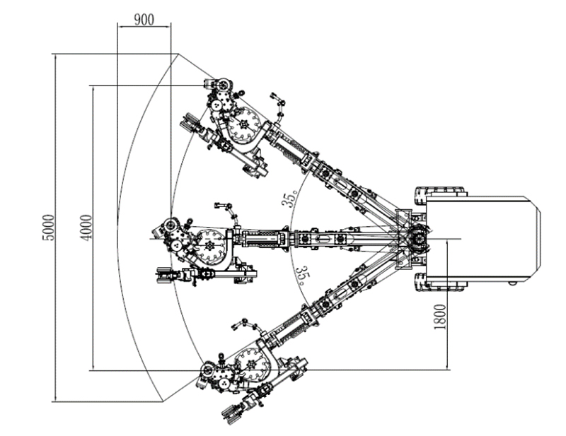
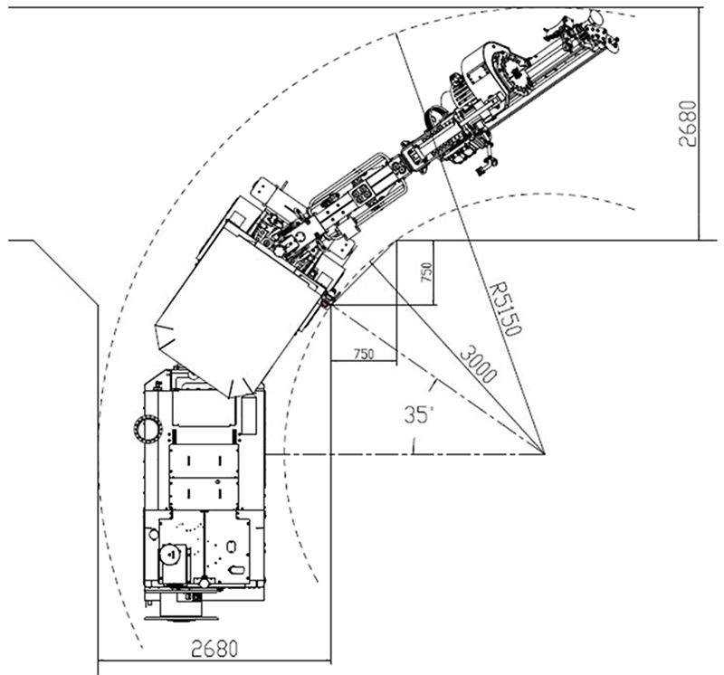
| GYTM412LD | Min. turning radius | Inner 3000mm / outer 5150mm |
| Gradeability | 14° | |
| Traveling speed | 3.8km/h | |
| Total weight | 12000kg | |
| Ground clearance | 280mm | |
| Hydraulic drifter | Model | RC1200 |
| Percussion power | 14kW | |
| Percussion frequency | 100Hz | |
| Max. Impact pressure | 180bar | |
| Rotation system | Independent rotation | |
| Shank | R32 | |
| Hole size | 32-45mm | |
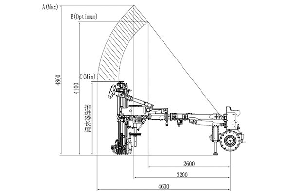
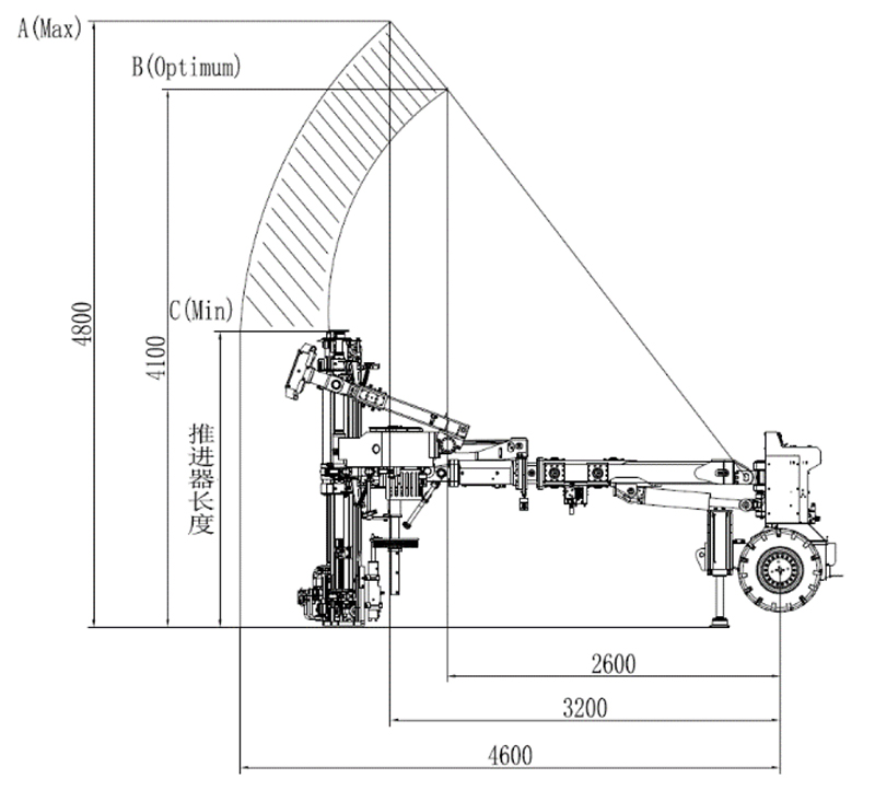
| Feed system | Feed length | 2780mm |
| Split set bolt length | 1800mm | |
| Working pressure | ≤10MPa | |
| Feed force | 10kN | |
| Feed tilting angle | +80°-25° | |
| Feed rotation angle | ±180° | |
| Feed compensation stroke | 480mm | |
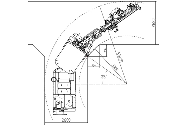
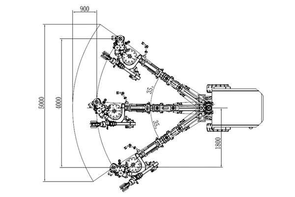
| Boom | Tilting angle | +50° / -30° |
| Boom extension | 900mm | |
| Swing angle | ±35° | |
| Chassis | Engine | Cummins Stage IV diesel engine |
| Rated output power (2400r/min) | 54kW | |
| Torque | 320N.m | |
| Rear axle oscillation | 7° | |
| Steering angle | ±35° | |
| Hydraulic system | Percussion/displacement | 100cc/32cc |
| Max. oil tank capacity | 100L | |
| Filter fineness | 10μm | |
| Oil level sensor: equipped | ||
| Water cooler: equipped | ||
Huatai is a Chinese company specialized in the design and batch production of rock drilling equipment. Since its inception in 2000, the company has been committed to manufacturing cutting edge products and providing the highest levels of customer service for a number of enterprises engaged in the mining, metallurgical and foundation engineer sectors.
Huatai has achieved continuous self-transcendence and filled several gaps in the domestic market through 20 years of ongoing innovation and development in the underground mining and rock drilling industry. Today, our product line includes more than 30 types of mine rock drilling machines which are fallen into three categories, i.e. underground mining equipment, coal mining equipment and shaft drilling jumbos. Years of our constant growth and improvement have resulted in a respectable achievement in the domestic rock drilling machine industry, increasing the safety, efficiency, and cost-effectiveness for underground mine engineering and tunneling construction operations.
The GYSJZ shaft drilling jumbo is a specialized, high-performance drilling machine developed to meet the demands of deep, hard-rock vertical shaft excavation. The drilling machinery is powered by a robust 132kW motor and equipped with three heavy-duty hydraulic drifters, enabling it to handle drilling diameters from 4 to 6 meters.
Read More +
YSJZ shaft drilling jumbo is a type of rock drilling machinery specially designed for vertical shaft construction in iron ore and non-ferrous metal mines. The shaft jumbo is a great alternative to be used in mining and underground construction projects where other drilling methods couldn't be adopted due to their technical or economic limits.
Read More +
SJZ series vertical shaft drill is a special equipment to drill blastholes for construction of vertical shaft. It suits a wide range of shaft diameters, and features of flexible operation, precise positioning and reliable safety.
Read More +
Purpose-built for medium-hard rock formations, the RC600 hydraulic drifter delivers powerful and precise drilling across a wide range of demanding applications. Its robust design and versatile capabilities make it the perfect choice for support drilling in underground mining, anchor bolt installation, highway construction, bridge engineering, and complex building projects.
Read More +